403-302-7366
Home Styles
Single Family Homes
Duplex Family Homes
Multi Family Homes
Virtual Tour
Lot Map
Community
Contact
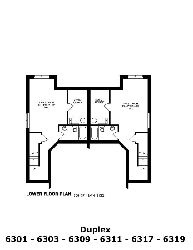
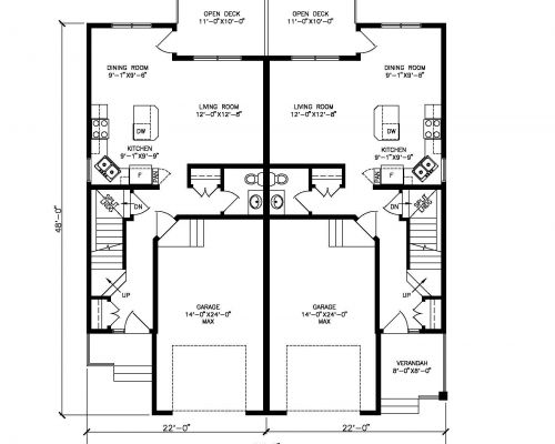
#6309 | #6311 - Duplex
Home
-
Home Styles
-
Duplex Family Homes
-
#6309 | #6311
Features
1289 sq/ft, Duplex
3 Bedrooms, 2.5 Bathrooms
Dining Room, Living Room, Family Room
Deck
Single Attached Garage (14’ x 24’)
Layout & Floorplan
Home Styles
Single Family Homes
Duplex Family Homes
#6301 | #6303
#6305 | #6307
#6309 | #6311
#6313 | #6315
#6317 | #6319
Multi Family Homes
© 2026
Ridgewood Estates
|
Log in
| Website by EDGE Marketing & Design Inc.