403-302-7366
Home Styles
Single Family Homes
Duplex Family Homes
Multi Family Homes
Virtual Tour
Lot Map
Community
Contact
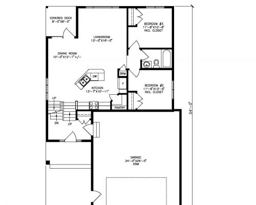
#6310 - Bi-Level
Home
-
Home Styles
-
Single Family Homes
-
#6310
Features
1351 sq/ft, Bi-level
4 Bedrooms, 3 Bathrooms
Living Room, Family Room, Games Room
Pantry, Storage
Double Attached Garage (24’ x 26’)
Layout & Floorplan
Home Styles
Single Family Homes
#6302
#6304
#6306
#6308
#6310
#6312
Duplex Family Homes
Multi Family Homes
© 2026
Ridgewood Estates
|
Log in
| Website by EDGE Marketing & Design Inc.